Homelander

2.0 Hearts: Needs Improvement

Summary

  • NDIS Compliance Notice in force: non-compliance found.

Compliance

Media Mentions

No media mentions found

Heartstead Quality Reports

No quality reports have been written for this provider yet. Be the first!

Discussion Online

Staff

No staffing data available

Listings

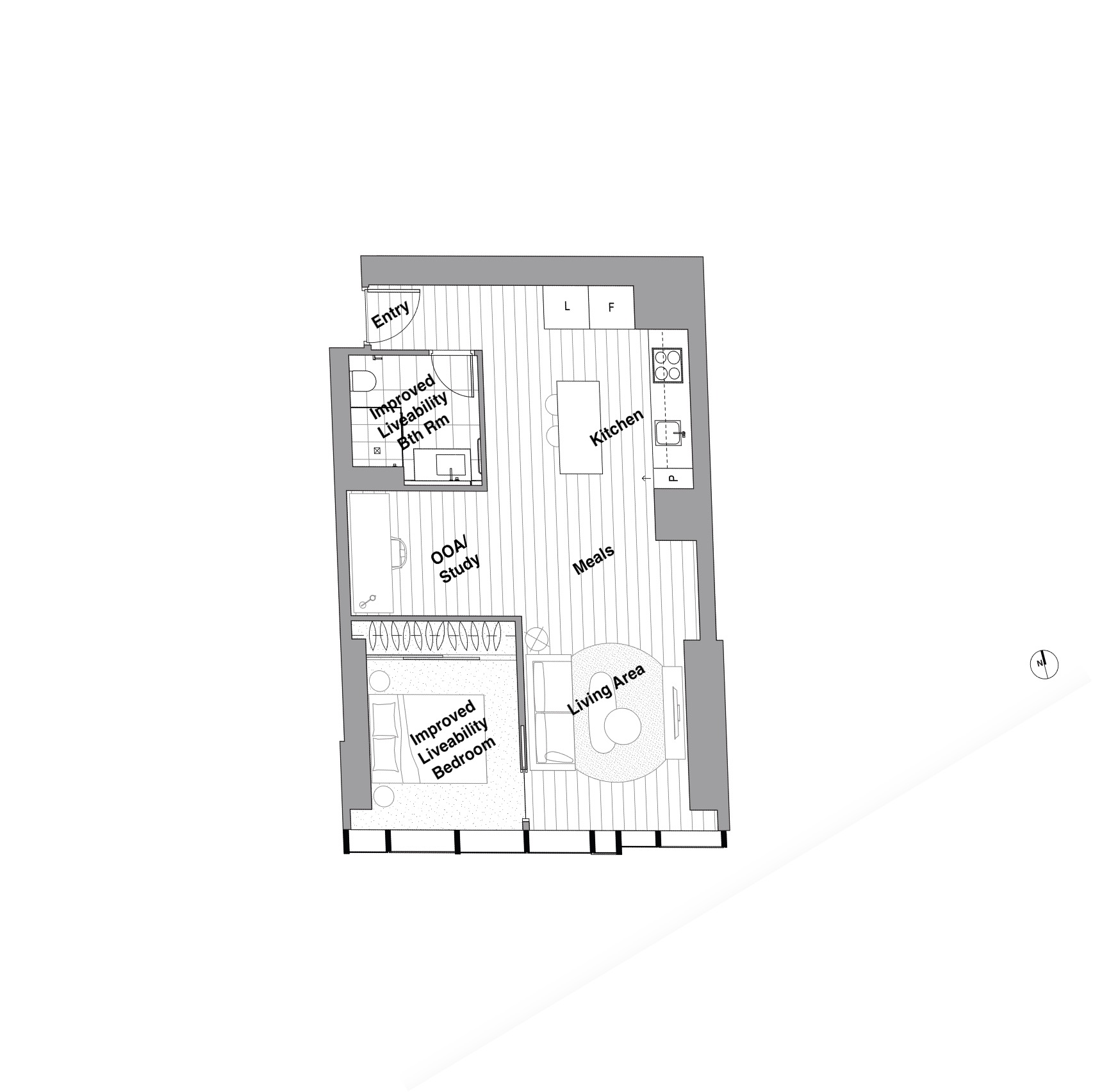
Improved Liveability Melton

Melton South, VIC, 3338

Support: Arrange separately
Housing: Homelander 2.0 Hearts: Needs Improvement
1 vacancy
Support Model
Arrange separately
SDA Design Class
Improved Liveability

You Deserve the Best

Melbourne, VIC, 3000

Support: Arrange separately
Housing: Homelander 2.0 Hearts: Needs Improvement
1 vacancy
Support Model
Arrange separately
SDA Design Class
Improved Liveability

Fully Furnished SDA Home

Beveridge, VIC, 3753

Support: Arrange separately
Housing: Homelander 2.0 Hearts: Needs Improvement
1 vacancy
2 current housemates
Support Model
Arrange separately
SDA Design Class
Robust